U gebruikt een verouderde internetbrowser.
We raden u aan om de meest recente internetbrowser te installeren voor de beste weergave van deze website.
Een internetbrowser die up to date is, staat ook garant voor veilig surfen.

Wingensesteenweg 128 / H, 8700 Tielt
Vraagprijs: € 436.000

Omschrijving

RUIME ENERGIEZUINIGE NIEUWBOUW (4 SLPKS) OP 471 m²

Deze VOLLEDIG AFGEWERKTE ENERGIEZUINIGE NIEUWBOUWWONING (2025) bevindt zich in Tielt met name in de Wingensesteenweg 128 H, op een perceel grond van 471 m² met een bewoonbare oppervlakte van maar liefst 197 m²!!! Tevens geniet U reeds van een AANGELEGDE TUIN EN PRACHTIGE LANDELIJKE ZICHTEN!!!

PLUSPUNTEN:
* PERFECT INSTAPKLAAR INTERIEUR/EXTERIEUR
* ZEER ENERGIEZUINIG E-PEIL 8
* ZONNEPANELEN 9 x 410 WP
* VENTILATIE TYPE D+
* WARMTEPOMP (LUCHT/LUCHT)
* VLOERVERWARMING OP ELKE VERDIEPING
* GEEN GRONDLASTEN EERSTE 5 JAAR

INTERIEUR:
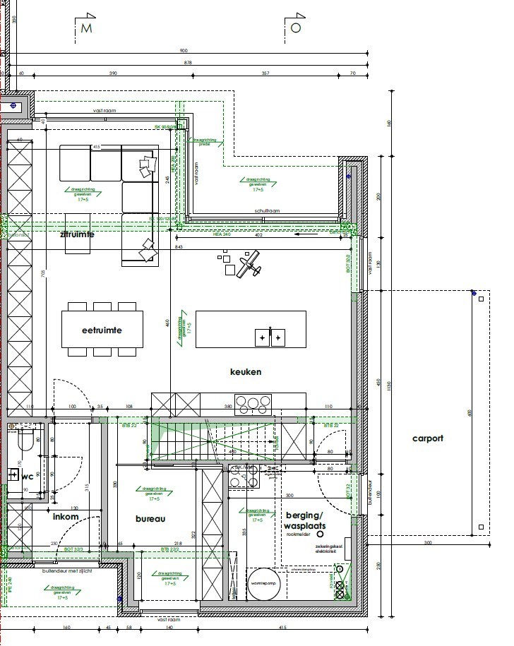
U betreedt de woning via de inkomhal met ruimte voor vestiaire alsook een apart gastentoilet met handwasser.
Aansluitend op de inkom is er de prachtige en zeer lichtrijke leefruimte (30 m²). De ruimte omvat de volledig ingerichte open keuken (18 m²). De keuken is voorzien van een stijlvol kookeiland en vormt het hart van de woning. Dankzij de grote raampartijen geniet u hier de hele dag door van een overvloed aan natuurlijk licht. U beschikt op dit verdiep tevens over een polyvalente ruimte van 10 m². Deze kan dienst doen als bureau, slaapkamer of hobbyruimte.
Handig is de berging alsook de waseruimte/achterinkom (10 m²)!
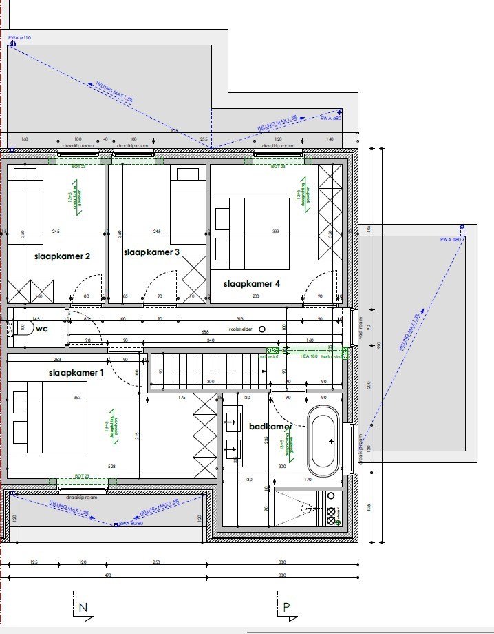
Op het verdiep bevinden zich dan nog eens 4 volwaardige slaapkamers (11,50 m² | 11,50 m² | 8,50 m² | 8,50 m²). Tevens op dit verdiep is er een ingerichte badkamer met ligbad, inloopdouche, dubbele lavabo met meubel. En als laatste een apart toilet.
Kortom, dit eigendom voldoet aan al je wensen!!!

EXTERIEUR:
De woning beschikt over een ruime achtertuin en een voortuin die reeds volledig is afgewerkt.
Op het eigen terrein is er parkeergelegenheid, inclusief een overdekte carport (3m x 6m) deze is nog in afwerking door de verkopers.


Kenmerken

Algemeen

Adres:Wingensesteenweg 128-H
Tielt
Referentie:2025/268/ND
Vraagprijs:€ 436.000
Type:Woning
Beschikbaar vanaf:Bij akte
Perceeloppervlakte:471 m²
Perceelbreedte:12 m
Perceeldiepte:41 m
Bebouwde opp.:111 m²
Bewoonbare opp.:197 m²
Type constructie:Traditioneel
Bouwjaar:2025
Gevelbreedte:9 m
Bouwlagen:2
Op verdieping:0
Algemene staat:Instapklaar

Indeling

Slaapkamers:4 (11.50 m², 11.50 m², 8.50 m², 8.50 m²)
Badkamers:1
WC:2
Bureau:1
Woonkamer:30 m², Woonkamer
Keuken:18 m², Open keuken, Ingericht met toestellen
Terras:33 m²
Wasplaats:10 m²
Tuin:Ja
Tuin oriëntatie:West
Tuin kwaliteit:Verzorgd
Garage:1 plaats
Garage Types:Carport
Parking:Ja
Parking Types:Privé

Comfort

Snelweg:Ja - op 4000 m tot 5000 m
Bushalte:Ja - op 500 m tot 1000 m
Winkel:Ja - op 2000 m tot 3000 m
School:Ja - op 2000 m tot 3000 m
Kinderopvang:Ja - op 2000 m tot 3000 m
Bank:Ja - op 2000 m tot 3000 m
Ontspanning:Ja - op 2000 m tot 3000 m
Restaurant:Ja - op 2000 m tot 3000 m
Raamwerk:Aluminium
Dak:Plat dak
Dakbedekking:Andere - EPDM
Gevel:Baksteen
Fundering:In volle grond
Beglazing:Hoogrendementsglas
Waterleiding:2025
Sanitair:2025
Elektriciteit:CONFORM
Verwarming:Vloerverw. geheel, Warmtepomp
Verwarmd water:Warmtepomp
Isolatie:Volledig geïsoleerd
Mech. ventilatie :Ja - TYPE D+
Rookdetector:Ja
Zonnepanelen:Ja - 9 STUKS

Kadastrale gegevens

Kadastrale benaming:HUIS
Kadastrale Nummers:168/R
Kadastrale Oppervlakte:471 m²

Informatieplicht

EPC Certificaat Nr.:Bij oplevering
Energielabel:A+
Renovatieplicht:Neen
EPC E-peil:8,00
Stedenbouwkundig attest:Ja
OVAM – Bodemattest:Ja
Informatieplicht overstromingsgevaar:Ja
Stedenbouwkundige vergunning:Ja
Voorkooprecht:Neen
Verkavelingsvergunning van toepassing:Neen
Stedenbouwkundige bestemming:Woongebied met landelijk karakter
Dagvaarding en herstelvordering:Geen rechterlijke herstelmaatregel of bestuurlijke maatregel opgelegd
Overstromingsgevoelig:Geen overstromingsgevoelig gebied
Overstromingsgebied:Geen afgebakende zones
Overstromingskans perceel (P-score):A
Overstromingskans gebouw (G-score):A
Erfgoed:Geen beschermd erfgoed

Ligging

Neem vrijblijvend contact op

Wenst u meer informatie of het pand te bezoeken? Contacteer ons vrijblijvend voor meer informatie. 
Wanneer wij uw aanvraag hebben ontvangen zullen wij verder contact met u opnemen. 


U moet akkoord gaan met het privacybeleid van deze website
* Verplicht in te vullen

Nele Demeyer

Nele Demeyer
Zaakvoerder
nele@vastgoeddemeyer.be 
GSM : +32 476 48 81 17
BIV 506.930
Niet gevonden wat u zocht? Schrijf u dan vrijblijvend in op onze nieuwsbrief en blijf op de hoogte van ons recentste aanbod.
Schrijf u in
Terug naar boven
Sluit menu Vastgoed Demeyer