U gebruikt een verouderde internetbrowser.
We raden u aan om de meest recente internetbrowser te installeren voor de beste weergave van deze website.
Een internetbrowser die up to date is, staat ook garant voor veilig surfen.

Helaas, dit pand is verkocht

8840 Oostnieuwkerke

Omschrijving

RUSTIG GELEGEN HALF OPEN BEBOUWING MET MOGELIJKHEID TOT VOLLEDIGE AFWERKING

Deze eigendom is gelegen in de Paalweg 8 te 8840 Staden (Oostnieuwkerke), dit betreft een volledig te renoveren woning op een perceel van 550m² met een bewoonbare oppervlakte van 125m².

Indeling:
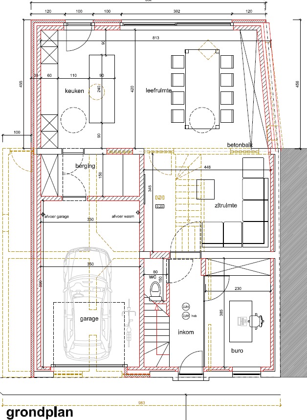
Inkom met gastentoilet, bueauruimte (9 m²), ruime lichtrijke L-vormige leefruimte met keuken (50 m²), berging en garage.
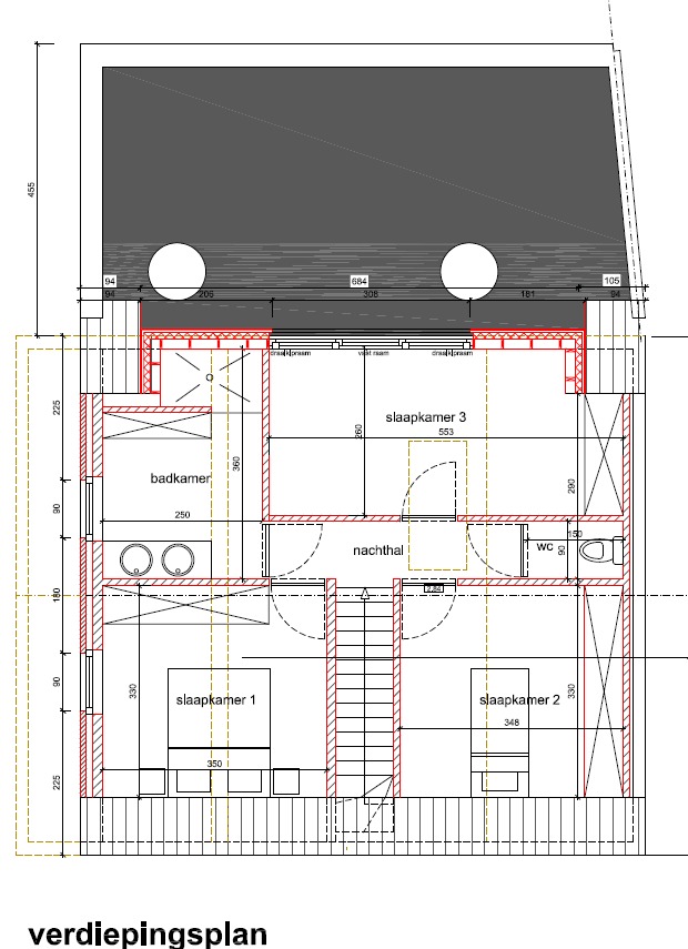
Het verdiep omvat een nachthall met apart toilet, drie slaapkamers (14,50 m² | 11,50 m² | 11,50 m²) alsook badkamer met dubbele lavabo en inloopdouche.

PLUSPUNTEN:
* Ruime perceel
* Rustige ligging
* Keuzemogelijkheid tot aankoop in huidige staat (115.000,00 €)
* Keuzemogelijkheid tot aankoop in afgewerkte staat (325.000,00 €)


Niet gevonden wat u zocht? Schrijf u dan vrijblijvend in op onze nieuwsbrief en blijf op de hoogte van ons recentste aanbod.
Schrijf u in
Terug naar boven
Sluit menu Vastgoed Demeyer